Back to Something Different
Something Different - WS01525
This is a building we have previously constructed which you may want to use as a starting point for your design. All our buildings are designed and manufactured to your individual specifications.
Details
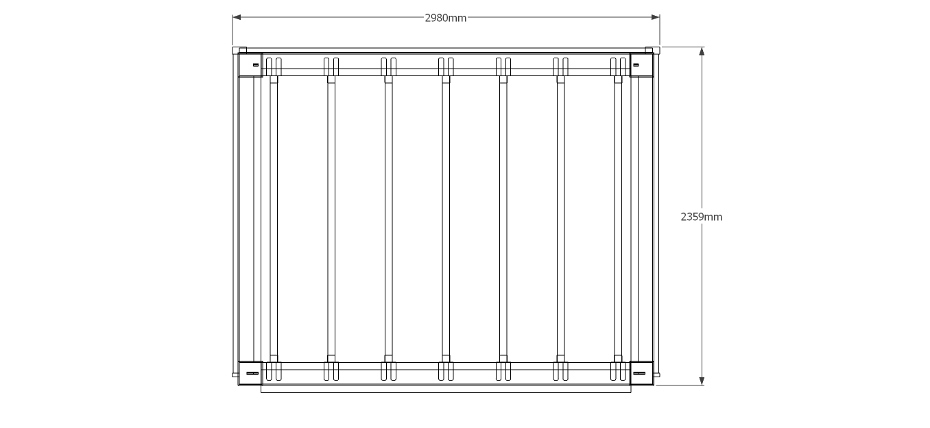
A single bay oak framed building with full height glazing along one wall and with a full hip roof on both the left and right
Dimensions
| G/F Area (sq m) | 7.03 |
| Total Area (sq m) | 7.03 |
| Length (m) | 2.98 |
| Depth (m) | 2.359 |
| Ridge Height (m) | 3.1 |
| Roof Pitch (deg) | 35 |
| Number of Bays | 1 |
| Location | Wales |




