Back to Something Different
Something Different - WS01311
This is a building we have previously constructed which you may want to use as a starting point for your design. All our buildings are designed and manufactured to your individual specifications.
Details
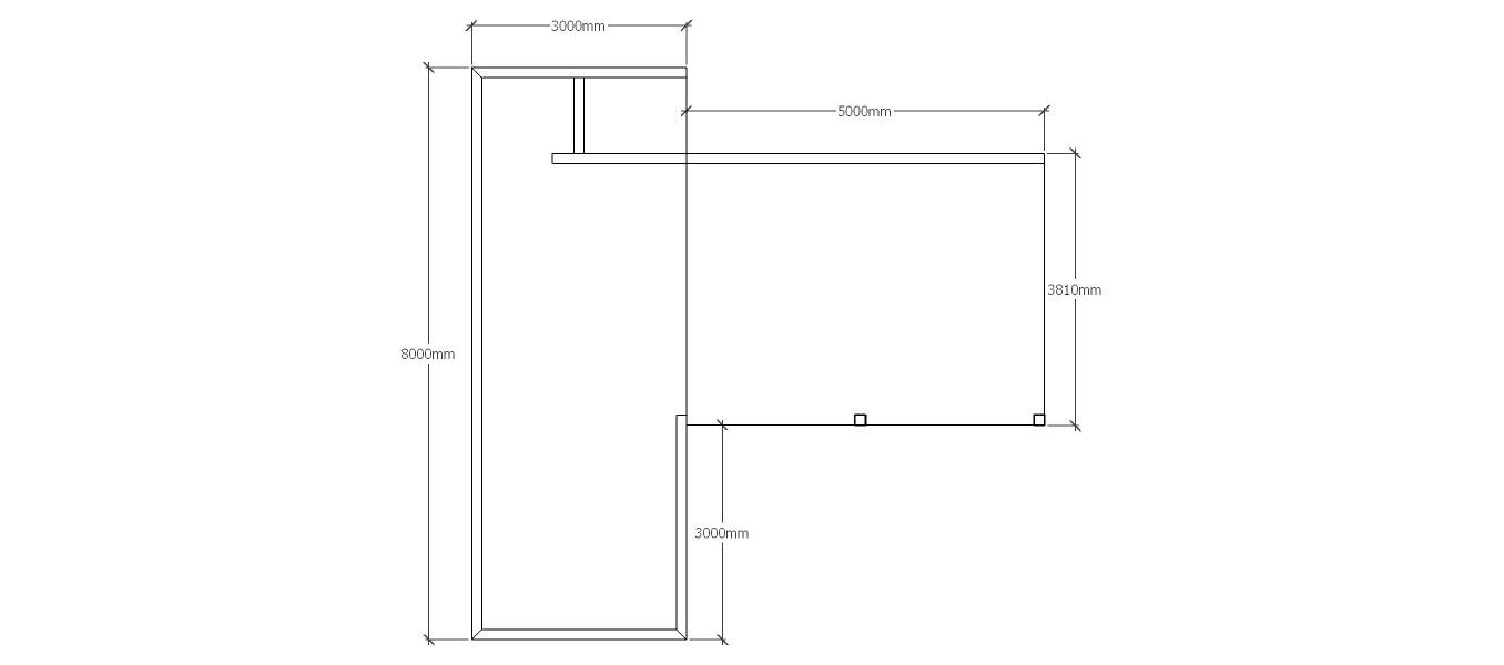
An oak framed garage / workshop with a large area being open but with a small room to the left with 2 windows.
Dimensions
| G/F Area (sq m) | 43 |
| Total Area (sq m) | 43 |
| Length (m) | 8 |
| Depth (m) | 8 |
| Ridge Height (m) | 4 |
| Roof Pitch (deg) | 40 |
| Number of Bays | 5 |
| Location | Belgium |




