Back to Three Bay Oak Garages with Upper Floors
Three Bay Oak Garages with Upper Floors - WS01178
This is a building we have previously constructed which you may want to use as a starting point for your design. All our buildings are designed and manufactured to your individual specifications.
Details
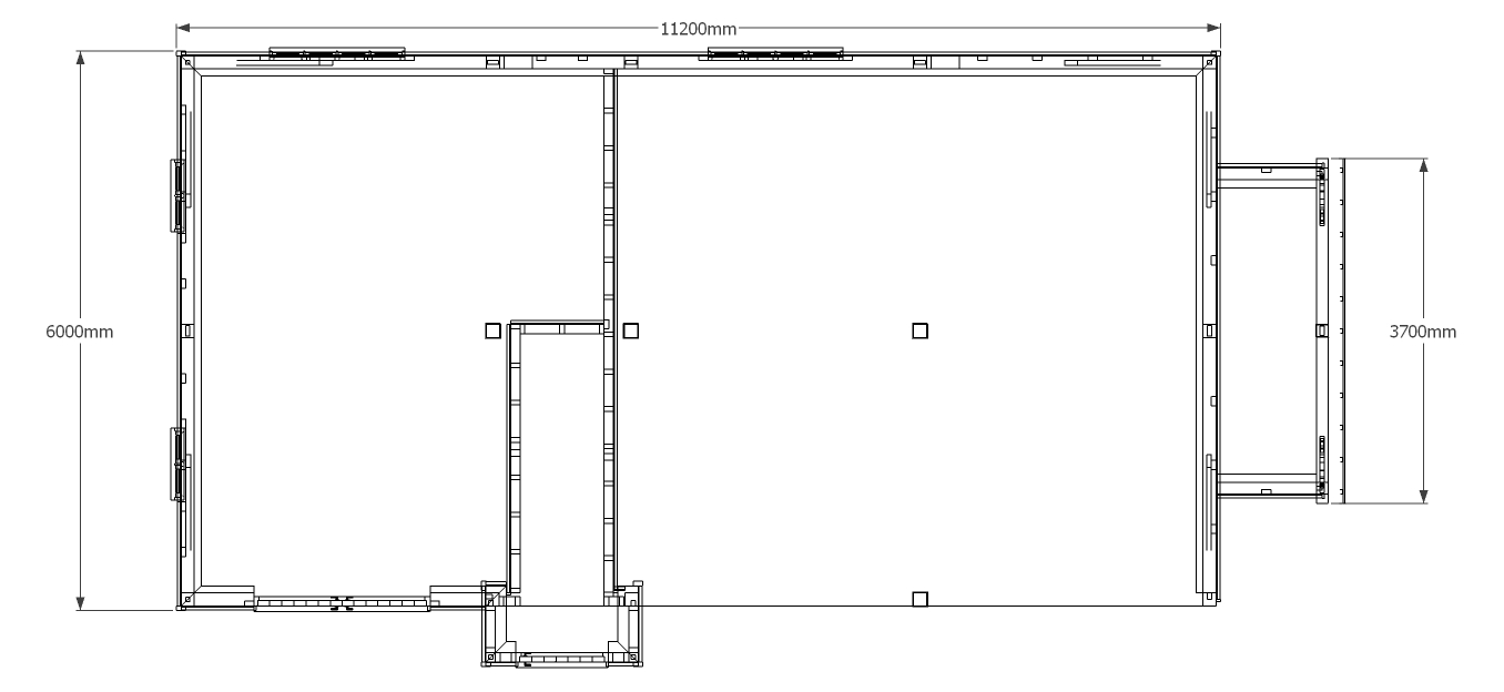
An oak framed garage with two open bays and another bay which could be used as studio space. An outshot stoage to the right hand side. Upper floor space with large windows accessed by internal stiars.
Dimensions
| G/F Area (sq m) | 71.17 |
| F/F Area (sq m) | 43.29 |
| Total Area (sq m) | 114.46 |
| Length (m) | 12.3 |
| Depth (m) | 6.5 |
| Ridge Height (m) | 6 |
| Roof Pitch (deg) | 50 |
| Number of Bays | 3 |
| Location | Hertfordshire |



