Back to Garden Rooms and Orangeries
Garden Rooms and Orangeries - WS00590
Also in: Oak Framed Extensions
Also in: Oak lean to
This is a building we have previously constructed which you may want to use as a starting point for your design. All our buildings are designed and manufactured to your individual specifications.
Details
This oak framed garden room extension has a shallow pitched roof to avoid a first floor window. There is full bay glazing all around except one panel of weatherboard.
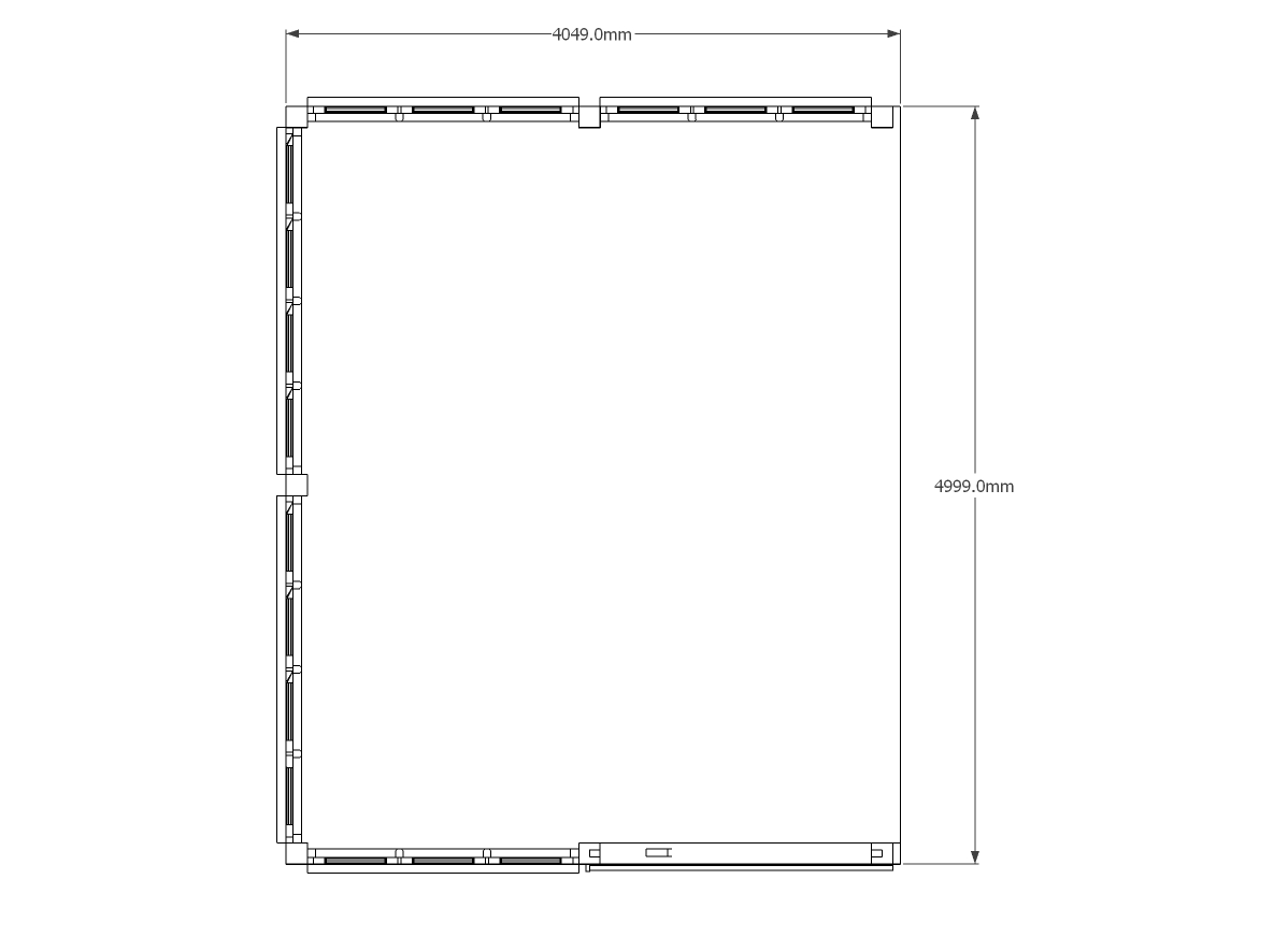
Dimensions
| G/F Area (sq m) | 20 |
| Total Area (sq m) | 20 |
| Length (m) | 4 |
| Depth (m) | 5 |
| Ridge Height (m) | 3.56 |
| Roof Pitch (deg) | 20 |
| Number of Bays | 2 |
| Location | Belgium |



