Back to Two Bay Oak Garages with Upper Floors
Two Bay Oak Garages with Upper Floors - WS00182
This is a building we have previously constructed which you may want to use as a starting point for your design. All our buildings are designed and manufactured to your individual specifications.
Details
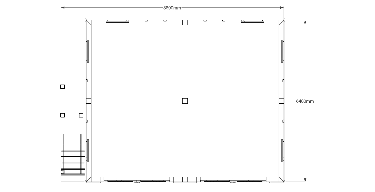
This two storey oak framed garage has two enclosed bays accessed via two sets of garage doors to the front of the building. The first floor is accessed by an external oak staircase to the left hand side and also by a half glazed door. There are two dormers to the front of the building and each dormer has a two pane window.
Dimensions
| G/F Area (sq m) | 49.92 |
| F/F Area (sq m) | 34.32 |
| Total Area (sq m) | 84.24 |
| Length (m) | 8.8 |
| Depth (m) | 6.4 |
| Ridge Height (m) | 5.7 |
| Roof Pitch (deg) | 45 |
| Number of Bays | 2 |
| Location | Wiltshire |
| Ridge Height (m) | Two Storey |



