Back to Two Bay Oak Garages with Upper Floors
Two Bay Oak Garages with Upper Floors - WS00842
This is a building we have previously constructed which you may want to use as a starting point for your design. All our buildings are designed and manufactured to your individual specifications.
Details
This oak framed garage has an upper floor which is accesed by the external staircase. The two bays are open for parking space. On the left hand side there is a three pane window for more natural lighjt in the upper floor. There are also two rooflights at the rear of the building.
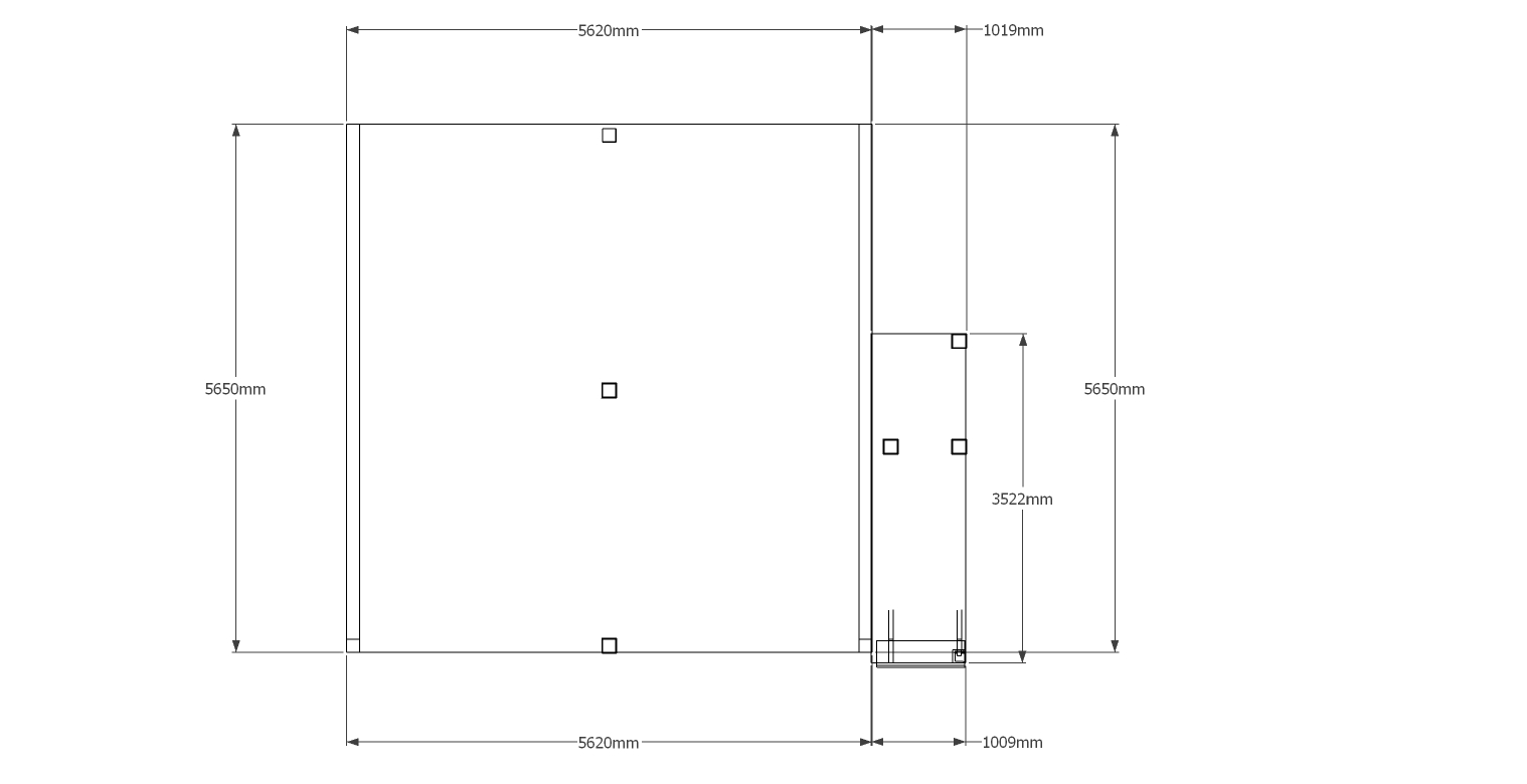
Dimensions
| G/F Area (sq m) | 31.75 |
| F/F Area (sq m) | 20.51 |
| Total Area (sq m) | 52.26 |
| Length (m) | 5.62 |
| Depth (m) | 5.65 |
| Ridge Height (m) | 5.273 |
| Roof Pitch (deg) | 45 |
| Number of Bays | 2 |
| Location | Kent |




