Back to Oak Framed Extensions
Oak Framed Extensions - WS00840
Also in: Oak lean to
This is a building we have previously constructed which you may want to use as a starting point for your design. All our buildings are designed and manufactured to your individual specifications.
Details
This oak framed building is designed to be attached to an exisiting building and has an upper floor. At the front of the building there is a three pane window at the top to bring in more natrual light to the upper floor. There is a single door and a three pane unit and a fully glazed two pane door. On the left hand side there is a three pane window and on the rigjht hand side there is a two pane window.
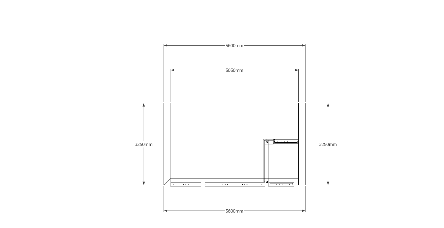
Dimensions
| G/F Area (sq m) | 18.2 |
| F/F Area (sq m) | 11.25 |
| Total Area (sq m) | 29.45 |
| Length (m) | 5.6 |
| Depth (m) | 3.25 |
| Ridge Height (m) | 5.164 |
| Roof Pitch (deg) | 45 |
| Number of Bays | 3 |
| Location | Buckinghamshire |




