Back to Four Bays and Upwards
Four Bays and Upwards - WS00488
Also in: Something Different
This is a building we have previously constructed which you may want to use as a starting point for your design. All our buildings are designed and manufactured to your individual specifications.
Details
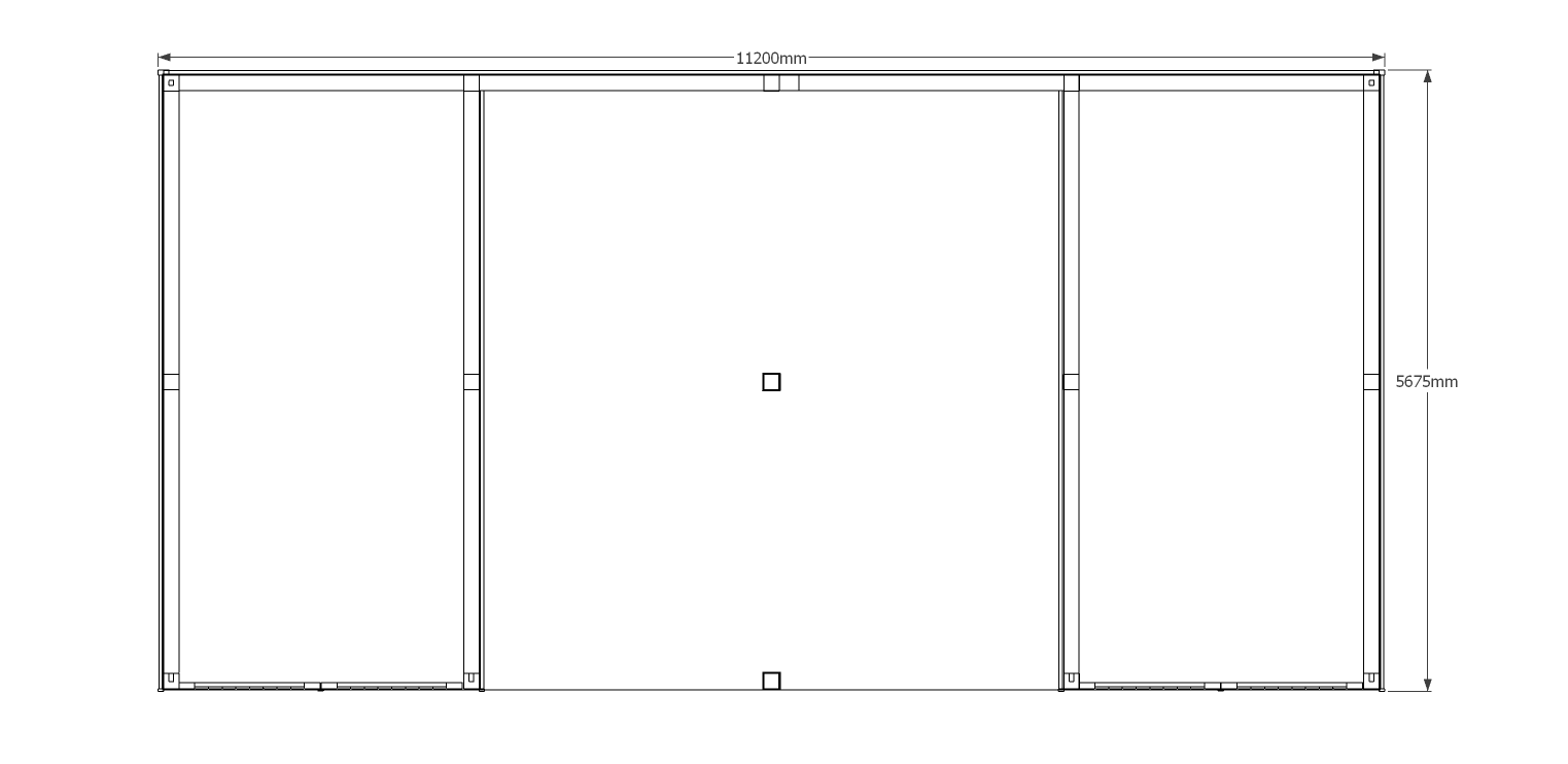
This oak framed garage has a very shallow roof pitch and Zinc roof covering. There is no plinth wall and all the posts sit on staddle stones. The centre two bays are open fronted and the outside two are enclosed with garage doors
Dimensions
| G/F Area (sq m) | 62.49 |
| Total Area (sq m) | 62.49 |
| Length (m) | 11.12 |
| Depth (m) | 5.62 |
| Ridge Height (m) | 2.9 |
| Roof Pitch (deg) | 10 |
| Number of Bays | 4 |
| Location | Berkshire |



