Back to Two Bay Oak Garages with Upper Floors
Two Bay Oak Garages with Upper Floors - WS00223
This is a building we have previously constructed which you may want to use as a starting point for your design. All our buildings are designed and manufactured to your individual specifications.
Details
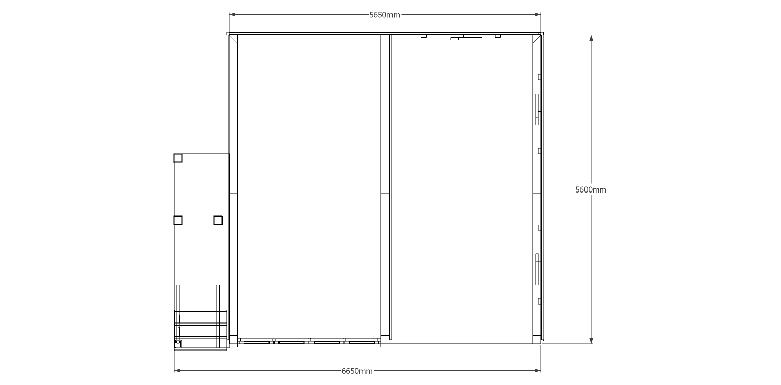
This two storey oak framed garage has two bays; one open and one enclosed. The first floor is accessed via an external oak staircase to the left hand side and a half glazed door. The enclosed bay has full length opening garden room windows to the front. On the first floor there are two dormers to the front, each with a two pane window, and a three pane window to the left side.
Dimensions
| G/F Area (sq m) | 31.64 |
| F/F Area (sq m) | 20.34 |
| Total Area (sq m) | 51.98 |
| Length (m) | 6.65 |
| Depth (m) | 5.6 |
| Ridge Height (m) | 5.8 |
| Roof Pitch (deg) | 50 |
| Number of Bays | 2 |
| Location | Hampshire |
| Ridge Height (m) | Two Storey |



